Zurück zur Startseite

englisch

Text und Grafik: Heinz Birkenheuer

IV. Zu der Rekonstruktion

1984 wurde mit den ersten Rekonstruktionen des Neusser Legionslager als Architekturmodell im Maßstab 1:200 begonnen. Zu Anfang entstanden die Rekonstruktionen der PRINCIPIA, der LEGIONSTHERME und des VALETUDINARIUM . Es folgten weitere Rekonstruktionen von, einigen Infanterie-und Reiterkasernen, einem Stückgutmagazin, einem Tribunenwohnbereich und im Anschluss noch die beiden Toranlagen die PORTA PRAETORIA und der XX.LEGIO

1989 kam die Entscheidung das gesamte Legionslager zu rekonstruieren. Für eine vollständige Rekonstruktionen des Legionslagers wurden die noch fehlenden Gebäuden ergänzt. Der von Constantin Koenen gezeichnete Plan aller Grabungsbefunde wurde bereinigt sodas nur noch die Fundamente der zweiten Steinbauphase ( 85 bis 105 n. Chr. ) für komlette Rekonstruktion zu Anwendung kamen. Die bereits fertig gestellten Rekonstruktionen erhielten ihren Platz auf Plexiglasfüßen auf einer Grundfläche auf der die zugehörigen Grundrissen maßstabgerecht platziert waren.

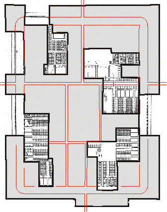
Bereinigter Grundriss der zweiten Steinbauphase

Die graue Fläche überdeckt den Bereich
der Rekonstruktionen- Stand 2006
Die helle Fläche ist der Stand der Rekonstruktion 2017

Um das Gesamtbild zu vervollständigen, wurden in den folgenden Jahren die fehlenden Toranlagen mit Teilbereichen der Lagerumwehrung und die noch nicht bestehenden Gebäude ergänzt. Im Frühjahr 2006 waren die Arbeiten so weit fortgeschritten, dass weitere Modelle von den wesentlichen Bereichen ablenken würden. Da sich die Kasernen und Tribunen-Wohnbereiche wiederholen, wurden nur einzelne herausragende Komplexe rekonstruiert.